Blikastaðaland ehf hefur látið útbúa myndband sem sýnir tillögu að fyrsta deiliskipulagsáfanga Blikastaða.
Category Archives: Uncategorized
Íbúa- og kynningarfundur um tillögu nýs hverfis í Blikastaðalandi verður haldinn 5. febrúar kl. 17:30 í FMOS, Bjarkarholti 35
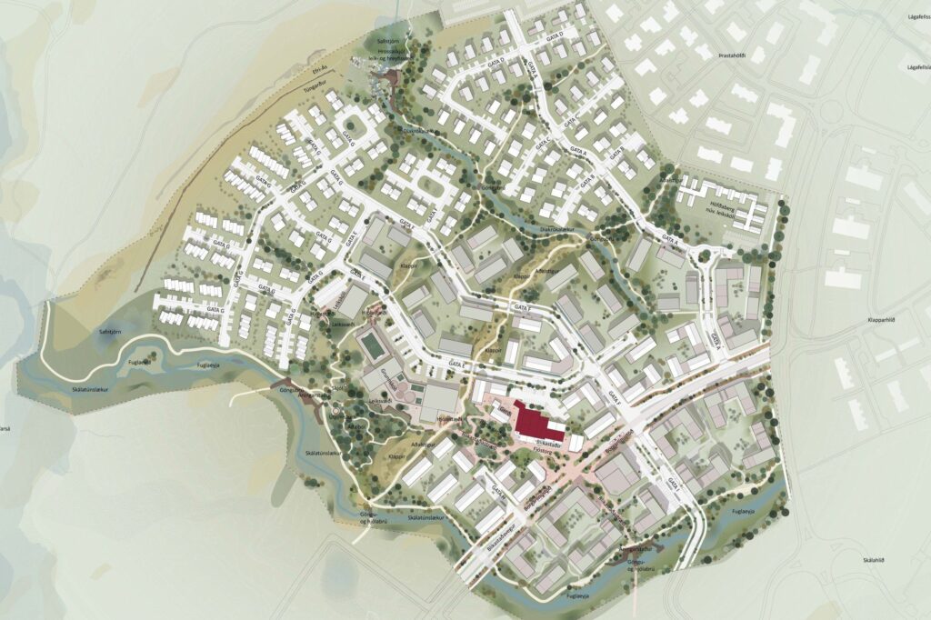
Bæjarstjórn Mosfellsbæjar samþykkti á fundi sínum 14. janúar 2026 að auglýsa deiliskipulagstillögu fyrir fyrsta áfanga Blikastaðalands samhliða breytingu á aðalskipulagi Mosfellsbæjar 2011-2030. Gert er ráð fyrir allt að 1260 íbúðum auk þjónustu, grunn- og leikskóla í þessum 1. áfanga svæðisins. Markmið nýs skipulags er að móta blandaða og vistvæna íbúðabyggð sem tekur mið af samgöngu- […]
Í gær var undirritað samkomulag Mosfellsbæjar og Blikastaðalands ehf., sem er í eigu Arion banka hf., um uppbyggingu á Blikastaðalandi í Mosfellsbæ. Nýja samkomulagið felur í sér hækkun framlags Blikastaðalands ehf. vegna uppbyggingar helstu innviða, svo sem grunnskóla, leikskóla og íþróttahúss. Gert er ráð fyrir um 3.500 – 3.700 íbúðum á svæðinu sem er skipulagt […]
Þér er boðið að kíkja í heimsókn til okkar á Blikastaði þann 14. júní. Gestir og gangandi geta kynnt sér fyrirhugaða uppbyggingu á svæðinu og samhliða notið léttra veitinga og skemmtilegrar leiksýningar. Fulltrúar frá arkitektastofunni Nordic verða með leiðsögn um svæðið og fræðslu um framtíðarsýn Blikastaða. Leikhópinn Lottu þarf vart að kynna. Í 18 ár […]
Mosfellsbær kynnir deiliskipulag 1. áfanga Blikastaðalands á vinnslustigi. Um er að ræða nýtt íbúðarhverfi að Blikastöðum þar sem markmiðið er að skapa eftirsóknarvert, þétt, blandað og spennandi hverfi með áherslu á nærumhverfið, náttúru, samgöngur og þjónustu. Nýtt hverfi mun innihalda fjölbreytt húsnæði í blandaðri byggð sem mun rísa í kringum gamla Blikastaðabæinn sem verður gerður […]
Nú er nógur snjór á Blikastöðum og því hefur Mosfellsbær í samstarfi við landeiganda og fyrirtækið Icebike Adventures staðið að lagningu skíðagönguspora undir heitinu Sporið á Blikastöðum og Hafravatni sjá nánar á heimasíðum Mosfellsbæjar https://mos.is/mannlif/um-mosfellsbae/frettir/samstarf-um-lagningu-skidagonguspora
Bæjarstjórn Mosfellsbæjar hefur samþykkt að kynna skipulagslýsingu fyrir nýja íbúðabyggð að Blikastöðum. Um er að ræða 1. áfanga svæðisins og var auglýsingin birt þann 13. desember 2023 og umsagnarfrestur gefinn til 15. janúar 2024. Sjá nánar á heimasíðu Mosfellsbæjar https://mos.is/mannlif/um-mosfellsbae/frettir/1-afangi-blikastadalands-skipulagslysing og í skipulagsgátt Skipulagsstofnunar https://skipulagsgatt.is/issues/1010
Þann 12. júní 2023 auglýsti Mosfellsbær frumdrög og vinnslutillögu nýs aðalskipulags 2022-2040. Umsagnarfrestur var gefinn til 12. september 2023. Meðal breytinga er að finna rammahluta aðalskipulags fyrir Blikastaði. Sjá nánar á heimasíðu Mosfellsbæjar https://mos.is/mannlif/um-mosfellsbae/frettir/frumdrog-nys-adalskipulags-mosfellsbaejar-2022-2040 og í skipulagsgátt Skipulagsstofnunar https://skipulagsgatt.is/issues/214
- 1
- 2









